精选48套美发美容店设计案例合集
2025-05-0987
滑到文章底部获取免费资料




《美容院设计案例参考合集》┆『精选48套美发美容店设计案例合集』高清官方摄影图片48套┃包含CAD施工图、效果图,设计方案(部分)┃360MB〖火柴设计联盟〗第2099期
资料亮点此合集内容为美发美容店设计案例合集
高清官方摄影图片
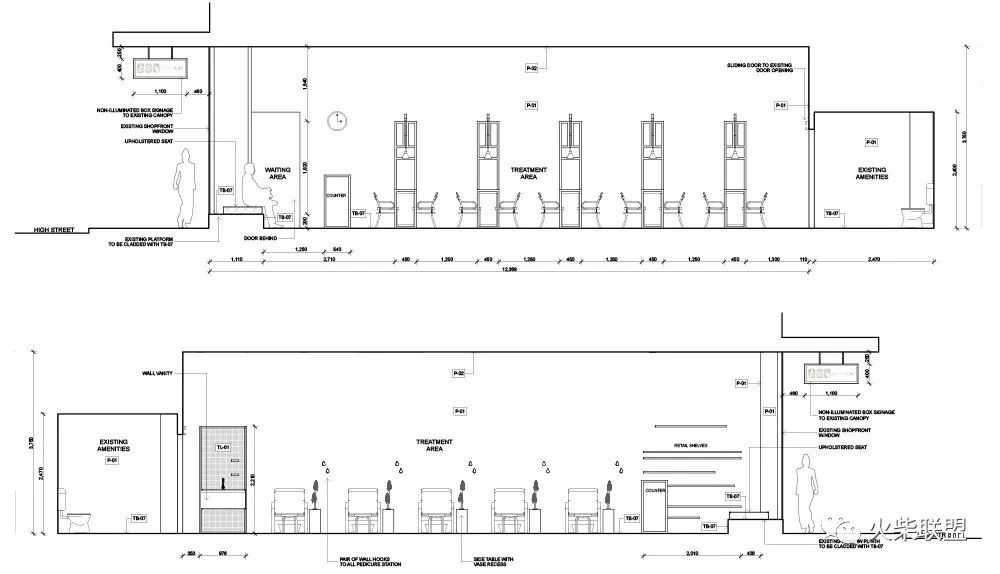
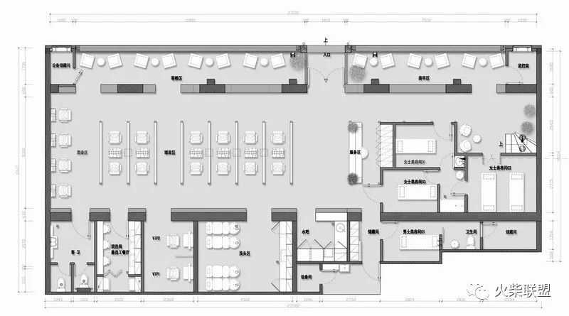
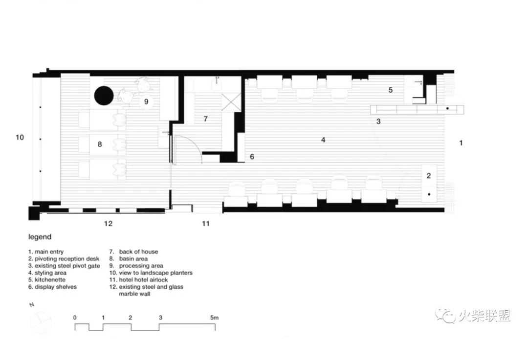
包含CAD施工图、效果图,设计方案(部分)等丰富资料
资料目录
法国马赛童趣理发店
















简约自然的美甲店墨尔本















美发沙龙Slundre-日本











南京秀客意美姬店(实景照片)



























飞雨言美容美发店面改造设计BY维度点设计WDDDESIGN












Roji沙龙-澳大利亚
















保利大都汇美容体验中心-刘家耀
【免费获取方式】







